Тел.: +7-921-228-2-022

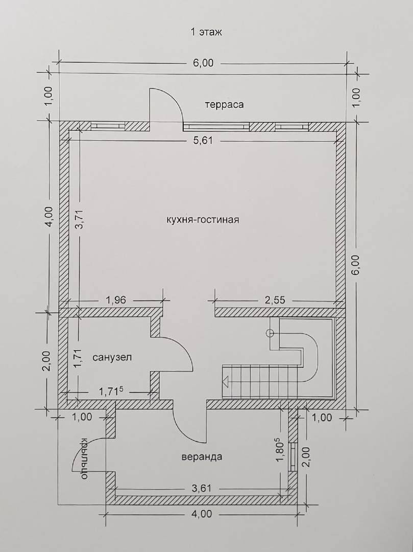
Каркасный дом 6*7 метров

Каркасный дом 6*7 метров с верандой 2*4 метра
Фундамент плита 150 мм, под верандой блоки ФБС
Каркас из сухой строительной доски 50*150 мм наружные стены и 50*100 мм внутренние перегородки
Утепление наружных стен каменной ватой Парок 150 мм, утепление крыши 250 мм
На крыше металлочерепица
На полу первого этажа керамогранит, на веранде и втором этаже половая шпунтованная доска..