Тел.: +7-921-228-2-022

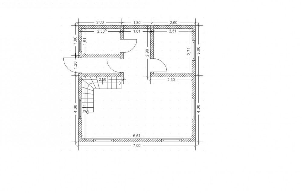
Каркасный дом 7*7 метров

Бригада нашей компании возвела каркасный дом под ключ 7х7 м в два этажа. Проект представляет собой технически продуманное строение с безупречным оформлением экстерьера и интерьера.

Особенности каркасного дома 7x7

Каркасный дом 7x7 м изготовлен из строительной доски камерной сушки 50x150 мм, имеет внутренние перегородки 50x100 мм. Помимо этого строение имеет следующие технические характеристики:

  1. Стропилы и перекрытия изготовлены из доски 5x20 см.
  2. В качестве утепления наружных стен использована каменная вата Paroc внахлёст, поэтому общая толщина утепления составила 25 см. Для утепления скатов и крыши использована вата на 20 см + 10 см внахлёст.
  3. Использована влагостойкая мембрана Tyvek solid и Finka 200 мк.
  4. В качестве фундамента выбрана бетонная плита, кровли - металлочерепица.
  5. Отделка фасада осуществлена с помощью крупнокалиберной имитации бруса 36x198 мм с окрашиванием стойкой фасадной краской Tikkurila Vinha.
  6. Отделка изнутри осуществлена имитацией бруса 20x146 мм с окрашиванием составом Евротекс.
  7. В качестве напольного покрытия первого этажа выбрана кварцвиниловая плитка, второго - ламинат.

Проект каркасного дома 7x7 дополнен электрическим котлом отопления с тёплыми водяными полами на первом этаже, а также отопительными радиаторами - на втором. Наша бригада установила септик и выполнила разводку труб по дому.

Заказать строительство каркасного дома по этому или любому другому проекту из каталога можно по телефону +7 (921) 228-2-022.