Тел.: +7-921-228-2-022

Баня из бруса 3*4м "под ключ"

Срок строительства на участке
5-7дней
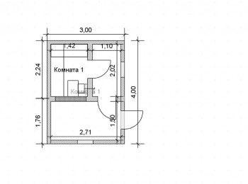
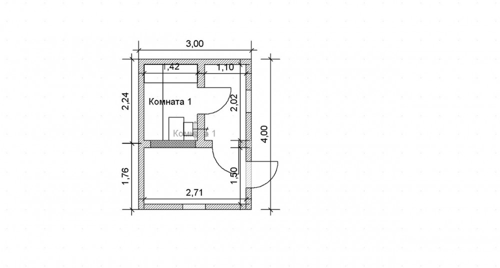
Размер
3*4м
Тип постройки
Брус
Стоимость
703 000 ₽

ФУНДАМЕНТ

• Фундамент блоки ФБС 30*30*30 см

• Гидроизоляция – стеклоизол в один слой

СРУБ

• Обвязочный венец - брус 100×150 мм (обработан антисептиком Nortex lux).

• Стены сруба (четыре стены): брус обрезной 100×150 мм -16 венцов включая обвязочный (угловое соединение при сборке в теплый угол). Сруб собирается на деревянные нагеля. Между венцами утеплитель: льноджутовое полотно.

• Межкомнатные перегородки: каркасные, сухая строганная доска 40*95 мм 1-2 сорт, утепление Юматекс Термо на 100мм, пароизоляционная фольгированная отражающая мембрана Ондутис R термо

СТРОПИЛЬНАЯ СИСТЕМА, КРЫША

• Стропильная система выполняется из сухой доски 40×95 мм 1-2 сорта.

• Прокладывается супердиффузионная трёхслойная мембрана Наноизол Professional SD

• Устанавливается контррейка для обеспечения вентиляционного зазора.

• Обрешётка крыши выполняется из обрезной доски 25×100 мм 2 сорта, с шагом 200 мм.

• Кровельный материал: Металлочерепица монтеррей 0,4 мм, цвет (Вишня, Шоколад, Зеленый мох – на выбор).

• Фронтон зашит имитацией бруса кат. АВ

• Свесы крыши (карниз) шириной 0,3 — 0,5 м подшиваются строганной доской кат. АВ.

ПОЛ, ПОТОЛОК

• Высота потолка - 2 м.

• Лаги потолка – сухая доска 40×95 мм 1-2 сорта с шагом 600 мм.

• Лаги пола – сухая доска 40×140 мм 1-2 сорта с шагом 600 мм.

• Черновой пол: доска 25×100 мм 2 сорта.

• Утепление: пол и потолок – каменная вата Юматекс Термо 100 мм с прокладыванием мембран снаружи супердиффузионная трёхслойная мембрана Наноизол Professional SD и внутри пароизоляционная фольгированная отражающая мембрана Ондутис R термо

• Чистовой пол: строганный половой шпунт не менее 28 мм толщиной принудительной сушки в комнате отдыха и парной. В моечном отделении на всю площадь устанавливается поддон из ПНД, и съемный деревянный настил.

ПАРНАЯ, МОЙКА, КОМНАТА ОТДЫХА

• В парной прокладывается пароизоляционная фольгированная отражающая мембрана Ондутис R термо.

• Внутренняя отделка (стены/потолок) имитацией бруса хвойных пород кат. АВ 16*147мм в комнате отдыха, мойке и осиновой вагонкой кат. А в парной. Вся отделка выполнена с установкой контррейки для обеспечения вентиляционного зазора.

• Места соединения пол — стены, потолок — стены, углы закрываются галтелью (брусок) 20*20 мм.

• Полки из строганной осиновой доски кат. А.

• В парной и мойке установлены вентиляционные продухи.

• Окна: деревянное 400×600 мм 2 шт

• Двери: входная деревянная утепленная, в мойку стеклянная матовая и стеклянная тонированная в парную.

• Оконные и дверные проемы с обеих сторон отделаны наличником из строганной доски хвойных пород кат. АВ.

• Печь банная Варвара мини с баком 41 литр, устанавливается с экраном из кирпичной кладки 17 рядов, комплектом камней.

• Под отделкой прокладывается электрокабель в негорючей гофре, без подключения и без установки осветительных приборов.

• 2 Скамейки.

• на входе 2-4 ступени.

Без наружной отделки имитацией бруса.

В стоимость входят материалы и работа, доставка рассчитывается индивидуально.

 

 

Бюджетная баня под ключ: мечта о собственном уюте

Собственная баня на даче - это мечта многих. Но как найти бюджетное решение? Баня из бруса 3х4 м под ключ - это идеальное предложение для тех, кто хочет комфортного отдыха без излишних затрат.

Почему выбирают баню под ключ?

  • Экономия времени и усилий. Строительство бани самостоятельно может занять много времени и сил. Баня под ключ экономит ваши ресурсы.
  • Гарантированное качество. Мы предлагаем бани из бруса, что обеспечивает высокую прочность и долговечность вашей бани.

Где купить баню под ключ для дачи недорого в Петрозаводске?

Если вы находитесь в Петрозаводске и ищете, где купить баню для дачи по доступным ценам, то вы попали по адресу. Мы предлагаем доступные цены на строительство бани под ключ в Петрозаводске, которые удовлетворят ваши финансовые ожидания.

Баня под ключ в Петрозаводске: ваш уют и комфорт

Заказывая баню под ключ у нас, вы получаете готовое сооружение, которое полностью готово к использованию. Мы создаем комфортное пространство для вашего отдыха и релаксации на природе.

Закажите бюджетную баню из бруса 3х4 м прямо сейчас!

Не упустите шанс сделать вашу мечту о собственной бане реальностью. Оставьте заявку на сайте или свяжитесь с нами по телефону +7-921-228-2-022. Мы готовы помочь вам создать уютное место для отдыха и релаксации. Создайте свой оазис комфорта прямо сейчас!