Тел.: +7-921-228-2-022

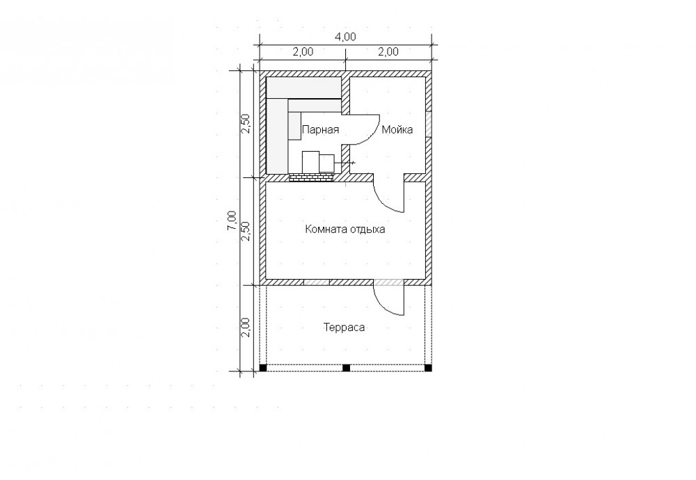
Баня из бруса 4*5м с террасой 4*2м "под ключ"

Срок строительства на участке
7-10 дней
Размер
4*7м
Тип постройки
Брус
Кол-во комнат
3
Стоимость
966 000 ₽

ФУНДАМЕНТ

• Фундамент блоки ФБС 30*30*30 см

• Гидроизоляция – стеклоизол в один слой

СРУБ

• Обвязочный венец - брус 100×150 мм (обработан антисептиком Nortex lux).

• Стены сруба (пятистенок): брус обрезной 100×150 мм -16 венцов включая обвязочный (угловое соединение при сборке в теплый угол). Сруб собирается на деревянные нагеля. Между венцами утеплитель: льноджутовое полотно.

• Межкомнатные перегородки: каркасные, сухая строганная доска 40*95 мм 1-2 сорт, утепление Юматекс Термо на 100мм, пароизоляционная фольгированная отражающая мембрана Ондутис R термо

СТРОПИЛЬНАЯ СИСТЕМА, КРЫША

• Стропильная система выполняется из сухой доски 40×95 мм 1-2 сорта.

• Прокладывается супердиффузионная трёхслойная мембрана Наноизол Professional SD

• Устанавливается контррейка для обеспечения вентиляционного зазора.

• Обрешётка крыши выполняется из обрезной доски 25×100 мм 2 сорта, с шагом 200 мм.

• Кровельный материал: Металлочерепица монтеррей 0,4 мм, цвет (Вишня, Шоколад, Зеленый мох – на выбор).

• Фронтон зашит имитацией бруса кат. АВ

• Свесы крыши (карниз) шириной 0,3 — 0,5 м подшиваются строганной доской кат. АВ.

ПОЛ, ПОТОЛОК

• Высота потолка - 2 м.

• Лаги потолка – сухая доска 40×95 мм 1-2 сорта с шагом 600 мм.

• Лаги пола – сухая доска 40×140 мм 1-2 сорта с шагом 600 мм.

• Черновой пол: доска 25×100 мм 2 сорта.

• Утепление: пол и потолок – каменная вата Юматекс Термо 100 мм с прокладыванием мембран снаружи супердиффузионная трёхслойная мембрана Наноизол Professional SD и внутри пароизоляционная фольгированная отражающая мембрана Ондутис R термо

• Чистовой пол: строганный половой шпунт не менее 28 мм толщиной принудительной сушки в комнате отдыха и парной. В моечном отделении на всю площадь устанавливается поддон из ПНД, и съемный деревянный настил.

ПАРНАЯ, МОЙКА, КОМНАТА ОТДЫХА

• В парной прокладывается пароизоляционная фольгированная отражающая мембрана Ондутис R термо.

• Внутренняя отделка (стены/потолок) имитацией бруса хвойных пород кат. АВ 16*147мм в комнате отдыха, мойке и осиновой вагонкой кат. А в парной. Вся отделка выполнена с установкой контррейки для обеспечения вентиляционного зазора.

• Места соединения пол — стены, потолок — стены, углы закрываются галтелью (брусок) 20*20 мм.

• Полки из строганной осиновой доски кат. А.

• В парной и мойке установлены вентиляционные продухи. • Окна: деревянное 400×600 мм 2 шт

• Двери: входная деревянная утепленная, в мойку стеклянная матовая и стеклянная тонированная в парную.

• Оконные и дверные проемы с обеих сторон отделаны наличником из строганной доски хвойных пород кат. АВ.

• Печь банная Варвара мини с баком 41 литр, устанавливается с экраном из кирпичной кладки 17 рядов, комплектом камней.

• Под отделкой прокладывается электрокабель в негорючей гофре, без подключения и без установки осветительных приборов.

• 2 Скамейки.

ТЕРРАСА

• Устанавливается терраса под одной крышей с баней.

• На террасе монтируются полы из строганной доски не менее 28 мм толщиной, набранной в разбежку через щель.

• Опорные столбы с усадочными анкерами, перила и балюстрадное ограждение.

• Скаты крыши подшиваются сухой строганной доской.

• на входе 2-4 ступени.

Без наружной отделки имитацией бруса.

В стоимость входят материалы и работа, доставка рассчитывается индивидуально.

 

 

Баня 4 на 5 м с террасой 4х2 м: Ваше место для уюта и релаксации

Вы мечтаете о собственной бане, где можно расслабиться и отдохнуть? Баня из бруса 4х5 м с террасой 4х2 м под ключ - это отличное решение. Давайте рассмотрим, сколько стоит баня под ключ и как она может стать вашей.

Сколько стоит построить баню?

Одним из первых вопросов, который интересует каждого, кто решает построить баню, является стоимость. Сколько стоит баня под ключ и как её купить? Стоимость бани из бруса зависит от нескольких факторов, таких как выбор материала, размер и комплектация. Однако мы предлагаем вам выгодное предложение, чтобы сделать вашу мечту реальностью.

Преимущества бани 4х5 м с террасой 4х2 м:

  1. Простор и уют. Этот размер бани идеально подходит для семейного отдыха и вмещает несколько человек.
  2. Терраса для отдыха на свежем воздухе. Терраса позволит вам наслаждаться природой после парной и проводить время с семьей и друзьями.
  3. Натуральный брус. Используемый материал обеспечивает отличную теплоизоляцию и создает приятную атмосферу внутри бани.

Закажите баню 4х5 м с террасой 4х2 м под ключ прямо сейчас!

Для тех, кто ценит комфорт и уют, мы предлагаем баню под ключ. Это означает, что вы получите готовое сооружение, полностью готовое к использованию.

Как заказать баню из бруса 4х5 м с террасой 4х2 м?

Заказать баню у нас легко. Вы можете оставить заявку на сайте или связаться со специалистами по телефону +7-921-228-2-022. Мы с удовольствием ответим на все вопросы и поможем вам осуществить мечту о собственной бане. Не упустите шанс создать уютное место для вашего отдыха и релаксации.