Тел.: +7-921-228-2-022

Баня из бруса 4*6м с террасой 2*4м "под ключ"

Срок строительства на участке
7-10 дней
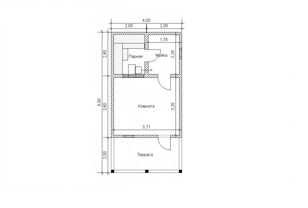
Размер
4*8м
Тип постройки
Брус
Кол-во комнат
3
Стоимость
1 042 000 ₽

ФУНДАМЕНТ

• Фундамент блоки ФБС 30*30*30 см

•Гидроизоляция – стеклоизол в один слой

СРУБ

• Обвязочный венец - брус 100×150 мм (обработан антисептиком Nortex lux).

• Стены сруба (пятистенок): брус обрезной 100×150 мм -16 венцов включая обвязочный (угловое соединение при сборке в теплый угол). Сруб собирается на деревянные нагеля. Между венцами утеплитель: льноджутовое полотно.

• Межкомнатные перегородки: каркасные, сухая строганная доска 40*95 мм 1-2 сорт, утепление Юматекс Термо на 100мм, пароизоляционная фольгированная отражающая мембрана Ондутис R термо

СТРОПИЛЬНАЯ СИСТЕМА, КРЫША

• Стропильная система выполняется из сухой доски 40×95 мм 1-2 сорта.

• Прокладывается супердиффузионная трёхслойная мембрана Наноизол Professional SD

• Устанавливается контррейка для обеспечения вентиляционного зазора.

• Обрешётка крыши выполняется из обрезной доски 25×100 мм 2 сорта, с шагом 200 мм.

• Кровельный материал: Металлочерепица монтеррей 0,4 мм, цвет (Вишня, Шоколад, Зеленый мох – на выбор).

• Фронтон зашит имитацией бруса кат. АВ

• Свесы крыши (карниз) шириной 0,3 — 0,5 м подшиваются строганной доской кат. АВ.

ПОЛ, ПОТОЛОК

• Высота потолка - 2 м.

• Лаги потолка – сухая доска 40×95 мм 1-2 сорта с шагом 600 мм.

• Лаги пола – сухая доска 40×140 мм 1-2 сорта с шагом 600 мм.

• Черновой пол: доска 25×100 мм 2 сорта.

• Утепление: пол и потолок – каменная вата Юматекс Термо 100 мм с прокладыванием мембран снаружи супердиффузионная трёхслойная мембрана Наноизол Professional SD и внутри пароизоляционная фольгированная отражающая мембрана Ондутис R термо

• Чистовой пол: строганный половой шпунт не менее 28 мм толщиной принудительной сушки в комнате отдыха и парной. В моечном отделении на всю площадь устанавливается поддон из ПНД, и съемный деревянный настил.

ПАРНАЯ, МОЙКА, КОМНАТА ОТДЫХА

• В парной прокладывается пароизоляционная фольгированная отражающая мембрана Ондутис R термо.

• Внутренняя отделка (стены/потолок) имитацией бруса хвойных пород кат. АВ 16*147мм в комнате отдыха, мойке и осиновой вагонкой кат. А в парной. Вся отделка выполнена с установкой контррейки для обеспечения вентиляционного зазора.

• Места соединения пол — стены, потолок — стены, углы закрываются галтелью (брусок) 20*20 мм.

• Полки из строганной осиновой доски кат. А.

• В парной и мойке установлены вентиляционные продухи.

• Окна: деревянное 400×600 мм 2 шт

• Двери: входная деревянная утепленная, в мойку стеклянная матовая и стеклянная тонированная в парную.

• Оконные и дверные проемы с обеих сторон отделаны наличником из строганной доски хвойных пород кат. АВ.

• Печь банная Варвара мини с баком 41 литр, устанавливается с экраном из кирпичной кладки 17 рядов, комплектом камней.

• Под отделкой прокладывается электрокабель в негорючей гофре, без подключения и без установки осветительных приборов.

• 2 Скамейки.

ТЕРРАСА

• Устанавливается терраса под одной крышей с баней.

• На террасе монтируются полы из строганной доски не менее 28 мм толщиной, набранной в разбежку через щель.

• Опорные столбы с усадочными анкерами, перила и балюстрадное ограждение.

• Скаты крыши подшиваются сухой строганной доской.

• на входе 2-4 ступени.

Без наружной отделки имитацией бруса.

В стоимость входят материалы и работа, доставка рассчитывается индивидуально.

 

Планируете ли вы создать уютное место для отдыха и релаксации на природе? Идеальным решением для вас будет баня из бруса 4х6 м с террасой 2х4 м под ключ. Ниже мы подробно расскажем вам о преимуществах этого проекта и почему он станет идеальным дополнением к вашей усадьбе в Карелии.

Баня из бруса 6х4 м - комфорт и надежность

Наши бани из бруса 6х4 метра - это прочное и надежное сооружение, которое прослужит вам долгие годы. Брус обладает отличной теплоизоляцией, что позволит вам наслаждаться теплом и уютом внутри даже в самые холодные дни. Более того, брус имеет природный и приятный аромат, что создаст особую атмосферу в вашей бане.

Терраса 2х4 м - место для отдыха на свежем воздухе

Наш проект предусматривает просторную террасу размером 2х4 метра. Здесь вы сможете наслаждаться свежим воздухом, устраивать барбекю или просто отдыхать после парной. Терраса станет отличным местом для общения с друзьями и семьей, добавляя функциональность и удобство вашей бане.

Баня из бруса с террасой под ключ - удобство и экономия времени

Мы предлагаем вам баню с террасой под ключ. Это значит, что вы получите сооружение, собранное профессионалами, и готовое к использованию. Экономьте свое время и силы, заказывая у нас баню "под ключ".

Купить баню из бруса под ключ недорого в Карелии - это реально!

Мы понимаем, что цена имеет значение. Поэтому мы предлагаем вам баню из бруса 4х6 м с террасой 2х4 м по доступной цене. Качество и надежность наших изделий сочетаются с приемлемой стоимостью. Не упустите шанс приобрести недорогую баню из бруса в Карелии.

Закажите баню из бруса 4х6 м с террасой 2х4 м под ключ прямо сейчас!

Получите уютное место для отдыха и релаксации на природе. Наши бани из бруса - это надежность, комфорт и красота. Приобретите баню по доступной цене, оставив заявку на сайте или свяжитесь с нашими специалистами по телефону +7-921-228-2-022. Мы ждем вас!