Тел.: +7-921-228-2-022

Баня каркасная 3*4м "под ключ"

Срок строительства на участке
5-7дней
Размер
3*4м
Тип постройки
Каркас
Кол-во комнат
3
Стоимость
715 000 ₽

Ограниченная площадь дачного участка – не повод отказаться от собственной бани. Компания «Кюлю» предлагает купить недорого каркасные бани небольших размеров, приспособленные как раз для земельных владений с небольшой площадью.

Именно для дачного или садового участка размером в 6 соток мы рекомендуем купить каркасную баню 3х4 м. Несмотря на компактные размеры, она обладает всем основным функционалом, необходимым для полноценного принятия банных процедур. Цена строительства бани по этому проекту доступна для каждого дачника.

Технические характеристики данного проекта бани 3*4м

КАРКАС

Стены бани строятся из доски камерной сушки, обвязка - брус 100 на 150 мм с антисептической обработкой, сохраняющей от гниения. Проекты бань такого типа отличаются высокой скоростью сборки и достаточно высокими функциональными характеристиками. Каркасные бани под ключ удобны тем, что пользоваться ими можно сразу же по завершении строительства без дополнительных доработок.

Стена каркасного строения напоминает слоеный пирог. Ее основой является решетка из досок, промежутки между досками равномерно заполняются теплоизоляторами. С внешней и внутренней стороны конструкция обшивается досками. В данном проекте используется утеплитель Paroc - это строительная каменная вата, широко применяемая в изоляции стен в качестве теплового барьера. Стеновая конструкция обустроена ветровой и пароизоляционной мембраной. Внешняя поверхность стен обшивается досками с имитацией бруса, внутренняя – вагонкой из хвойных и лиственных пород дерева.

ФУНДАМЕНТ

Благодаря небольшим размерам и легкости конструкции, не требуется заливка мощного фундамента. Под фундамент используются готовые блоки ФБС, что существенно ускоряет строительство каркасной бани. Для каркасных строений не требуется усадка, это позволяет проводить отделку, не дожидаясь полной усадки материала.

ПАРНАЯ, МОЙКА, КОМНАТА ОТДЫХА

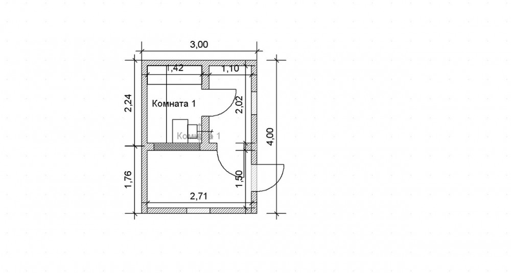
Внутреннее пространство состоит из трех отделений – предбанника, мойки и парилки, оборудованной печью Варвара с баком 41 л и кирпичным экраном. Полки в парной изготовлены из осиновых досок. Входная дверь – деревянная утепленная, внутренняя между мойкой и парилкой – из тонированного стекла. Высота потолка составляет 2,1 м. В бане имеется два окна размером 400 на 600 мм.

Для стока воды в мойке предусмотрена сливная система, состоящая из пластикового поддона под деревянным настилом и водоотводной трубы. При монтаже полов предусматривается наличие вентиляционных зазоров. Лаги пола и потолка изготовлены из высушенных в специальной камере досок. Использование сухого строительного материала исключает гниение пола и стен, образование плесени и грибка, значительно увеличивает срок службы строения.

ЛЕСТНИЦА И КРЫША

Баня стоит на некотором возвышении над уровнем земли, поэтому для удобства входа в нее установлена лестница, количество ступенек в которой варьируется от 2 до 4. Двускатная крыша покрывается металлочерепицей с оттенком по выбору клиента: «вишня», «зеленый мох» или «шоколад».

Какие цены на проекты каркасных бань?

Недорогая баня для дачи под ключ хорошо впишется в комплекс дачных построек. Строение по данному проекту имеет строгий, но эстетичный дизайн. Цена в прайсе указана с учетом оплаты стоимости материалов и работы, доставка и покраска наружных стен рассчитывается отдельно. Вид лакокрасочного материала выбирается клиентом.

Компания «Кюлю» осуществляет строительство бань в Петрозаводске на выгодных условиях. Для уточнения окончательной стоимости следует связаться с менеджером компании по телефону +7 (921) 228-2-022.

ФУНДАМЕНТ

• Фундамент блоки ФБС 30*30*30 см

• Гидроизоляция – стеклоизол РХПП в один слой КАРКАС

• Обвязочный венец - брус 100×150 мм (обработан антисептиком Nortex lux).

• Стены каркасные, доска сухая строганная 40*95 мм, утепление Юматекс Термо на 100мм, снаружи супердиффузионная трёхслойная мембрана Наноизол Professional SD и внутри пароизоляционная фольгированная отражающая мембрана Ондутис R термо

• Вся внутренняя и наружная отделка выполнена с установкой контррейки для обеспечения вентиляционного зазора.

• Наружная отделка имитацией бруса 20*147 мм кат. АВ., БЕЗ ПОКРАСКИ

СТРОПИЛЬНА СИСТЕМА, КРЫША

• Стропильная система доска сухая строганная 40*95 мм мм 1-2 сорта.

• Прокладывается супердиффузионная трёхслойная мембрана Наноизол Professional SD

• Устанавливается контррейка для обеспечения вентиляционного зазора.

• Обрешётка крыши выполняется из обрезной доски 25×100 мм 2 сорта, с шагом 250 мм.

• Кровельный материал: Металлочерепица монтеррей 0,4 мм, цвет (Вишня, Шоколад, Зеленый мох – на выбор).

• Свесы крыши (карниз) шириной 0,3 — 0,5 м подшиваются строганной доской кат. АВ 20*90мм

ПОЛ, ПОТОЛКИ:

• Высота потолка - 2.00 м.

• Лаги пола – сухая доска 40×140 мм с шагом 590 мм.

• Лаги потолка – сухая доска 40×140 мм с шагом 590 мм.

• Утепление пол и потолок – каменная вата Юматекс Термо 100 мм с прокладыванием снаружи супердиффузионная трёхслойная мембрана Наноизол Professional SD и внутри пароизоляционная фольгированная отражающая мембрана Ондутис R термо

• Черновой пол: обрезная доска 25×100 мм.

• Чистовой пол: строганный половой шпунт не менее 28 мм толщиной принудительной сушки в комнате отдыха и парной. Монтаж полов выполнен с установкой контррейки для обеспечения вентиляционного зазора. В мойке устанавливается поддон из ПНД с трубой для отвода воды и съемный деревянный настил

ПАРНАЯ, МОЙКА, КОМНАТА ОТДЫХА

• Внутренняя отделка (стены/потолок) имитацией бруса хвойных пород кат. АВ 16*146мм в комнате отдыха, мойке и осиновой вагонкой кат. А в парной. Вся отделка выполнена с установкой контррейки для обеспечения вентиляционного зазора.

• Места соединения пол — стены, потолок — стены, углы закрываются галтелью (брусок) 20*20 мм.

• Полки из строганной осиновой доски кат. А 28*90мм (верхний 60см, нижний 30 см), юбка полка из осиновой доски 20*90мм

• В парной и мойке установлены вентиляционные продухи. • Окна деревянные с двойным остеклением 400×600 мм, 2 шт

• Двери: входная деревянная утепленная, в мойку стеклянная матовая и стеклянная тонированная в парную.

• Оконные и дверные проемы с обеих сторон отделаны наличником из строганной доски хвойных пород кат. АВ.

• Печь банная Варвара мини с баком 41 литр, устанавливается с экраном из кирпичной кладки, камни 3 уп., трубы дымовые стальные, ППУ, проходка кровли, зонтик на трубу, фламм листы

• Электрика: под отделкой прокладывается электрокабель в негорючей гофре, без подключения и без установки осветительных приборов.

• 2 Скамейки.

• на входе 2-4 ступени.

 

В стоимость входят материалы и работа, доставка рассчитывается индивидуально.

 

Стоимость указана без наружной покраски!

Стоимость покраски зависит от выбранного лакокрасочного материала. Акватекс сканди (укрывистый) или Акватекс прованс/викинг (лессирующий), цвет на выбор.  

Покраска материалов для отделки осуществляется в условиях цеха, на объект монтируется уже окрашенная доска!