Тел.: +7-921-228-2-022

Баня каркасная 4*4м "под ключ"

Срок строительства на участке
5-10дней
Размер
4*4м
Тип постройки
Каркас
Кол-во комнат
3
Стоимость
788 000 ₽

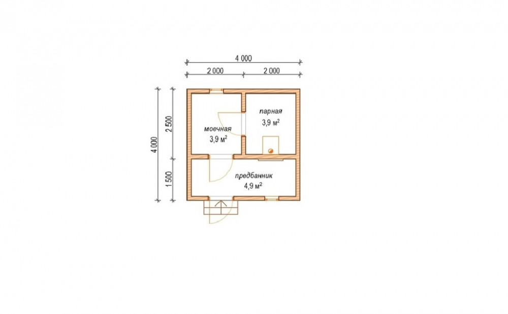
Каркасная баня 4*4 м – это лучшее решение для ограниченного пространства на вашем загородном участке. Компактное строение не займет много места, при этом будет достойно выполнять свою функциональную задачу. Планировка проекта бани 4*4 включает широкий предбанник, в котором можно переодеться и оставить одежду, вместительную моечную и парную для комфортного принятия водных процедур.

Каркасная баня 4*4: технические характеристики и особенности проекта

Готовая деревянная баня, выполненная в габаритах 4*4, обладает следующими техническими характеристиками:

ФУНДАМЕНТ

• Фундамент блоки ФБС 30*30*30 см

• Гидроизоляция – стеклоизол РХПП в один слой

КАРКАС

• Обвязочный венец - брус 100×150 мм (обработан антисептиком Nortex lux).

• Стены каркасные, доска сухая строганная 40*95 мм, утепление Юматекс Термо на 100мм, снаружи супердиффузионная трёхслойная мембрана Наноизол Professional SD и внутри пароизоляционная фольгированная отражающая мембрана Ондутис R термо

• Вся внутренняя и наружная отделка выполнена с установкой контррейки для обеспечения вентиляционного зазора.

• Наружная отделка имитацией бруса 20*147 мм кат. АВ., БЕЗ ПОКРАСКИ

СТРОПИЛЬНА СИСТЕМА, КРЫША

• Стропильная система доска сухая строганная 40*95 мм мм 1-2 сорта.

• Прокладывается супердиффузионная трёхслойная мембрана Наноизол Professional SD

• Устанавливается контррейка для обеспечения вентиляционного зазора.

• Обрешётка крыши выполняется из обрезной доски 25×100 мм 2 сорта, с шагом 250 мм.

• Кровельный материал: Металлочерепица монтеррей 0,4 мм, цвет (Вишня, Шоколад, Зеленый мох – на выбор).

• Свесы крыши (карниз) шириной 0,3 — 0,5 м подшиваются строганной доской кат. АВ 20*90мм

ПОЛ, ПОТОЛКИ:

• Высота потолка - 2.00 м.

• Лаги пола – сухая доска 40×140 мм с шагом 590 мм.

• Лаги потолка – сухая доска 40×140 мм с шагом 590 мм.

• Утепление пол и потолок – каменная вата Юматекс Термо 100 мм с прокладыванием снаружи супердиффузионная трёхслойная мембрана Наноизол Professional SD и внутри пароизоляционная фольгированная отражающая мембрана Ондутис R термо

• Черновой пол: обрезная доска 25×100 мм.

• Чистовой пол: строганный половой шпунт не менее 28 мм толщиной принудительной сушки в комнате отдыха и парной. Монтаж полов выполнен с установкой контррейки для обеспечения вентиляционного зазора. В мойке устанавливается поддон из ПНД с трубой для отвода воды и съемный деревянный настил

ПАРНАЯ, МОЙКА, КОМНАТА ОТДЫХА

• Внутренняя отделка (стены/потолок) имитацией бруса хвойных пород кат. АВ 16*146мм в комнате отдыха, мойке и осиновой вагонкой кат. А в парной. Вся отделка выполнена с установкой контррейки для обеспечения вентиляционного зазора.

• Места соединения пол — стены, потолок — стены, углы закрываются галтелью (брусок) 20*20 мм.

• Полки из строганной осиновой доски кат. А 28*90мм (верхний 60см, нижний 30 см), юбка полка из осиновой доски 20*90мм

• В парной и мойке установлены вентиляционные продухи.

• Окна деревянные с двойным остеклением 400×600 мм, 2 шт

• Двери: входная деревянная утепленная, в мойку стеклянная матовая и стеклянная тонированная в парную.

• Оконные и дверные проемы с обеих сторон отделаны наличником из строганной доски хвойных пород кат. АВ.

• Печь банная Варвара мини с баком 41 литр, устанавливается с экраном из кирпичной кладки, камни 3 уп., трубы дымовые стальные, ППУ, проходка кровли, зонтик на трубу, фламм листы

• Электрика: под отделкой прокладывается электрокабель в негорючей гофре, без подключения и без установки осветительных приборов.

• 2 Скамейки.

• на входе 2-4 ступени.

Где купить баню под ключ без наценок посредников?

Наша компания «Кюлю» предлагает купить баню 4*4, выполненную из материалов собственного производства, доставленных из лесов Карелии. Подписывая договор с нами, вы получаете полный комплекс услуг до сдачи готового объекта в эксплуатацию.

Обратите внимание, что в цену бани 4*4 под ключ входят только материалы и работа, доставка рассчитывается индивидуально. Указанная на сайте сумма рассчитана без наружной покраски. Ее стоимость будет зависеть от выбранного лакокрасочного материала: Акватекс сканди (укрывистый) или Акватекс викинг (лессирующий), цвет выбирает клиент. Покраска материалов для отделки осуществляется в условиях цеха, на объект монтируется уже окрашенная доска!

Цена бани просчитывается мастером, фиксируется в договоре и не меняется после завершения работ. Наши бригады строго соблюдают технологию и установленные сроки без нарушений дедлайна. Если вы планируете заказать строительство по этому или любому другому проекту из каталога, то свяжитесь с менеджером компании «Кюлю» по телефону +7-921-228-2-022.