Тел.: +7-921-228-2-022

Баня каркасная 4*4м с террасой 4*2м "под ключ"

Срок строительства на участке
7-10 дней
Размер
4*6м
Тип постройки
Каркас
Кол-во комнат
3
Стоимость
916 000 ₽

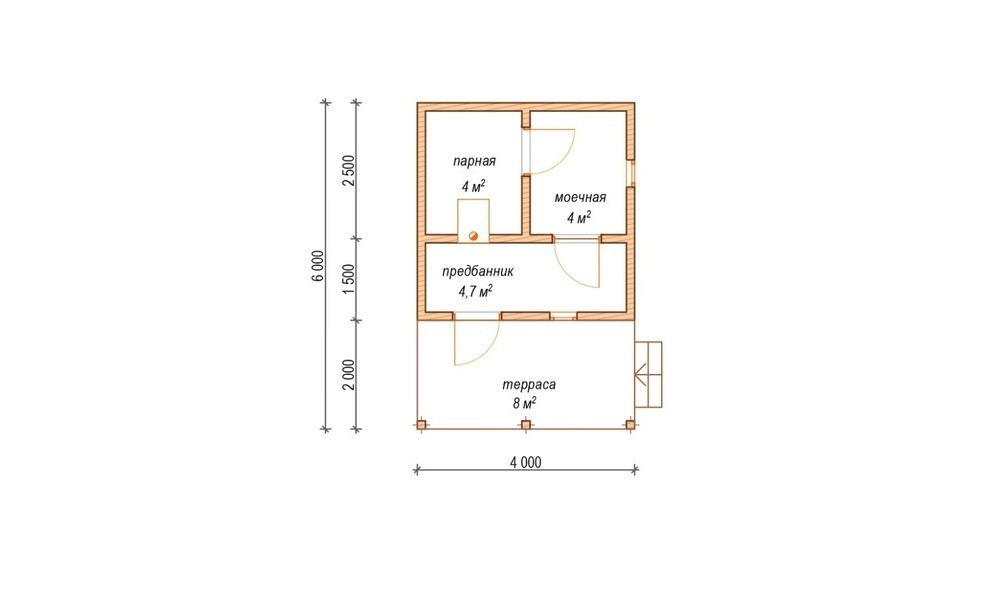
Каркасная баня с террасой выполнена в красивом контрастном исполнении в теплых песочных оттенках. Ее внутреннее пространство предусматривает моечную, парную и предбанник, перед которым обустроена просторная терраса. Тут можно оборудовать полноценную зону отдыха для уютного времяпровождения.

Особенности строительства каркасных бань под ключ по данному проекту

Готовая одноэтажная каркасная баня обладает следующими техническими характеристиками:

ФУНДАМЕНТ, КАРКАС

• Фундамент блоки ФБС 30*30*30 см

• Гидроизоляция – стеклоизол РХПП в один слой КАРКАС

• Обвязочный венец - брус 100×150 мм (обработан антисептиком Nortex lux).

• Стены каркасные, доска сухая строганная 40*95 мм, утепление Юматекс Термо на 100мм, снаружи супердиффузионная трёхслойная мембрана Наноизол Professional SD и внутри пароизоляционная фольгированная отражающая мембрана Ондутис R термо

• Вся внутренняя и наружная отделка выполнена с установкой контррейки для обеспечения вентиляционного зазора.

• Наружная отделка имитацией бруса 20*147 мм кат. АВ., БЕЗ ПОКРАСКИ

СТРОПИЛЬНА СИСТЕМА, КРЫША

• Стропильная система доска сухая строганная 40*95 мм мм 1-2 сорта.

• Прокладывается супердиффузионная трёхслойная мембрана Наноизол Professional SD

• Устанавливается контррейка для обеспечения вентиляционного зазора.

• Обрешётка крыши выполняется из обрезной доски 25×100 мм 2 сорта, с шагом 250 мм.

• Кровельный материал: Металлочерепица монтеррей 0,4 мм, цвет (Вишня, Шоколад, Зеленый мох – на выбор).

• Свесы крыши (карниз) шириной 0,3 — 0,5 м подшиваются строганной доской кат. АВ 20*90мм ПОЛ, ПОТОЛКИ:

• Высота потолка - 2.00 м.

• Лаги пола – сухая доска 40×140 мм с шагом 590 мм.

• Лаги потолка – сухая доска 40×140 мм с шагом 590 мм.

• Утепление пол и потолок – каменная вата Юматекс Термо 100 мм с прокладыванием снаружи супердиффузионная трёхслойная мембрана Наноизол Professional SD и внутри пароизоляционная фольгированная отражающая мембрана Ондутис R термо

• Черновой пол: обрезная доска 25×100 мм.

• Чистовой пол: строганный половой шпунт не менее 28 мм толщиной принудительной сушки в комнате отдыха и парной. Монтаж полов выполнен с установкой контррейки для обеспечения вентиляционного зазора. В мойке устанавливается поддон из ПНД с трубой для отвода воды и съемный деревянный настил

ПАРНАЯ, МОЙКА, КОМНАТА ОТДЫХА

• Внутренняя отделка (стены/потолок) имитацией бруса хвойных пород кат. АВ 16*146мм в комнате отдыха, мойке и осиновой вагонкой кат. А в парной. Вся отделка выполнена с установкой контррейки для обеспечения вентиляционного зазора.

• Места соединения пол — стены, потолок — стены, углы закрываются галтелью (брусок) 20*20 мм.

• Полки из строганной осиновой доски кат. А 28*90мм (верхний 60см, нижний 30 см), юбка полка из осиновой доски 20*90мм • В парной и мойке установлены вентиляционные продухи. • Окна деревянные с двойным остеклением 400×600 мм, 2 шт

• Двери: входная деревянная утепленная, в мойку стеклянная матовая и стеклянная тонированная в парную.

• Оконные и дверные проемы с обеих сторон отделаны наличником из строганной доски хвойных пород кат. АВ.

• Печь банная Варвара мини с баком 41 литр, устанавливается с экраном из кирпичной кладки, камни 3 уп., трубы дымовые стальные, ППУ, проходка кровли, зонтик на трубу, фламм листы

• Электрика: под отделкой прокладывается электрокабель в негорючей гофре, без подключения и без установки осветительных приборов.

• 2 Скамейки.

ТЕРРАСА

• Устанавливается терраса под одной крышей с баней.

• На террасе монтируются полы из строганной доски не менее 28 мм толщиной, набранной в разбежку через щель.

• Опорные столбы, перила и балюстрадное ограждение.

• Скаты крыши подшиваются сухой строганной доской.

• на входе 2-4 ступени.

Какая цена каркасной бани 4х4?

Если вы хотите заказать строительство и установку каркасной бани, в таком случае добро пожаловать на официальный сайт «Кюлю». Мы знаем о строениях из дерева абсолютно все, в процессе используем только лучшие материалы собственного производства, тщательно контролируем качество и предоставляем гарантию на 1 год. Уточнить условия сотрудничества можно у нашего менеджера по телефону +7 (921) 228-2-022.

Обратите внимание, наружная покраска готового строения рассчитывается индивидуально. Указанная цена за проекты каркасных бань 4х4 актуальна на май 2024г.