Тел.: +7-921-228-2-022

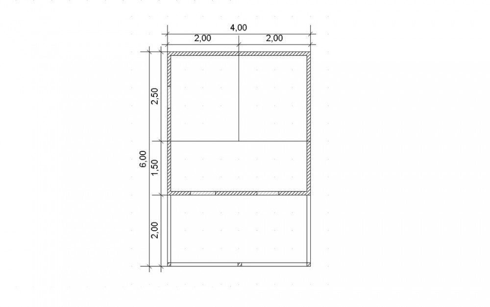
Сруб бани из бруса 4*4м с выносом 4*2м "под крышей"

Срок строительства на участке
2 дня
Размер
4*6м
Тип постройки
Брус
Стоимость
401 000 ₽

Фундамент:

• Фундамент блоки ФБС 30*30*30см на точечную подушку из щебня

• Гидроизоляция стеклоизол РХПП в один слой.

Сруб:

• Обвязочный венец - брус 100×150 мм (обработан антисептиком ХМ-11).

• Стены сруба: брус 100×150 мм -16 венцов включая обвязочный (угловое соединение при сборке в теплый угол). Сруб собирается на деревянные нагеля.

• Между венцами бруса прокладывается утеплитель: льноджутовое полотно 5-6 мм

Стропильная система, крыша:

• Стропильная система выполняется из обрезной доски 50×100 мм 1-2 сорта.

• Прокладывается мембрана «Изоспан».

• Устанавливается контррейка 25*50 мм для обеспечения вентиляционного зазора.

• Обрешётка крыши выполняется из обрезной доски 25×100 мм 2 сорта, с шагом 200 мм.

• Кровельный материал: Металлочерепица Монтеррей 0,45, цвет (Вишня, Шоколад, Зеленый мох – на выбор).

• Свесы крыши (карниз) шириной 0,3 — 0,5 м не подшиваются.

• Устанавливаются ветровые планки и конек крыши в цвет.

• Лаги потолка и пола – обрезная доска 50×150 мм 1-2 сорта с шагом 600 мм.

Вынос под террасу под крышей верхней и нижней обвязка, установка опорных столбов с усадочными анкерами.

Монтаж на Вашем участке 1-2 дня.

 

В стоимость входят материалы и работа, доставка рассчитывается индивидуально.

Вложение