Тел.: +7-921-228-2-022

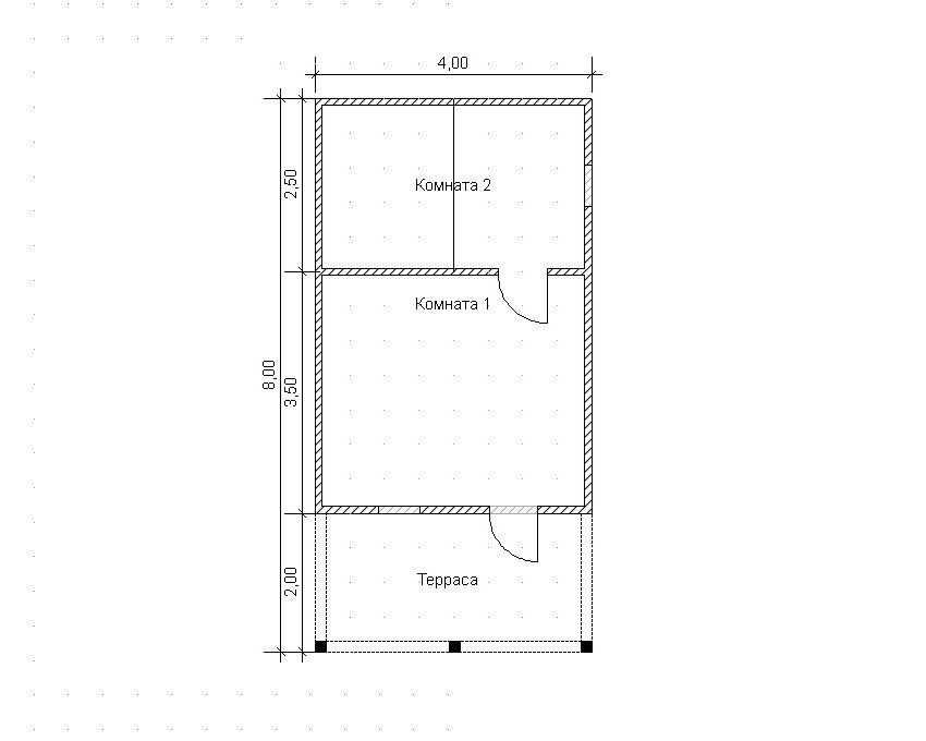
Сруб бани из бруса 4х6м с выносом 4*2м "под крышей"

Срок строительства на участке
2-3 дня
Размер
4*8м
Тип постройки
Брус
Стоимость
520 000 ₽

Этот сруб из бруса под баню является наиболее выгодным вложением средств. Сруб из натуральной древесины хвойных пород способен подарить настоящий релакс, отдых от городской суетливой жизни и наполнить здоровьем. Его внешняя красота является дополнительным преимуществом для красивого оформления загородного участка. Интересный проект гармонично впишется в общее оформление территории и будет радовать своих владельцев многие годы. Бригада компании «Кюлю» с удовольствием возведут баню по готовому типовому проекту и воплотят мечту в реальность!

Фундамент:

• Фундамент блоки ФБС 30*30*30см на точечную подушку из щебня

• Гидроизоляция стеклоизол РХПП в один слой.

Сруб:

• Обвязочный венец - брус 100×150 мм (обработан антисептиком ХМ-11).

• Стены сруба: брус 100×150 мм -16 венцов включая обвязочный (угловое соединение при сборке в теплый угол). Сруб собирается на деревянные нагеля.

• Между венцами бруса прокладывается утеплитель: льноджутовое полотно 5-6 мм

Стропильная система, крыша:

• Стропильная система выполняется из обрезной доски 50×100 мм 1-2 сорта.

• Прокладывается мембрана «Изоспан».

• Устанавливается контррейка 25*50 мм для обеспечения вентиляционного зазора.

• Обрешётка крыши выполняется из обрезной доски 25×100 мм 2 сорта, с шагом 200 мм.

• Кровельный материал: Металлочерепица Монтеррей 0,45, цвет (Вишня, Шоколад, Зеленый мох – на выбор).

• Свесы крыши (карниз) шириной 0,3 — 0,5 м не подшиваются.

• Устанавливаются ветровые планки и конек крыши в цвет.

• Лаги потолка и пола – обрезная доска 50×150 мм 1-2 сорта с шагом 600 мм.

Вынос под террасу под крышей верхней и нижней обвязка, установка опорных столбов с усадочными анкерами.

 

Монтаж на Вашем участке 2 дня.

В стоимость входят материалы и работа, доставка рассчитывается индивидуально.

Какие цены на сруб бани из бруса?

Помимо перечисленных выше этапов работ проект включает также сооружение выноса под террасу под крышей, обвязка, монтаж опорных столбов с усадочными анкерами. В цену сруба бани 6х4 из бруса входят все материалы и работа мастеров. Стоимость типового проекта указана на каждой странице, она прописывается в договоре и не меняется после сдачи объекта. Обратите внимание, если клиент выбрал дополнительные услуги, то смета может увеличиваться. Чтобы купить бани из бруса от производителя, свяжитесь с менеджером нашей компании «Кюлю» по телефону +7-921-228-2-022.

 

Вложение